390 Treffer:
Irseer_Blätter_-_Heft_5_.pdf   IRSEER BLÄTTER … zur Geschichte von Markt und Kloster Irsee Helmut Zäh Das Kloster Irsee am Vorabend der Säkularisation. Der letzte Abt Honorius Grieninger und sein Oberamtmann Marx Fidel von…  
Ausfertigung_SATZUNG_BBP_Nr._17_Oggenrieder_Straße.pdf   Markt lrsee Landkreis Ostallgäu Bebauungsplan Nr. 17 "Oggenrieder Straße" Satzung bestehende aus den textlichen Festsetzungen und der Planzeichnung mit Verfahrensvermerk Planfertiger: Planungsbüro…  
Ausfertigung_BEGRÜNDUNG_BBP_Nr._17_Oggenrieder_Straße.pdf   Markt lrsee Landkreis Ostallgäu Bebauungsplan Nr. 17 "Oggenrieder Straße" Begründung Planfertiger: Planungsbüro Max Kehrbaum Richard-Wiebei-Gässchen 1 87660 lrsee Tel.: +49(0) 8341 9559835…  
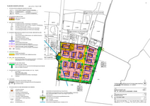
Ausfertigung_PLANZEICHNUNG_BBP_Nr._17_Oggenrieder_Straße.pdf   S' Bebauungsplan Nr. 17 "Oggenrieder Straße" · Planteil Markt lrsee Landkreis Ostallgäu C VERFAHRENSVERMERKE 1. Der Beschluss zur Aufstellung des Bebauungsplanes wurde am 04.12.2018 gefasst …  
MB_2020_09.pdf   MITTEILUNGSBLATT MARKT IRSEE HERAUSGEGEBEN VOM MARKT IRSEE Meinrad-Spieß-Platz 1 · 87660 Irsee · Tel. 0 83 41 / 22 14 · Fax 0 83 41 / 10 15 29 · info@irsee.de · www.irsee.de Öffnungszeiten: Dienstag…  
Irseer_Blätter_-_Heft_4.pdf   Irseer Blätter … zur Geschichte von Markt und Kloster Irsee Max Starkmann „Beim Koneberg gab’s das erste Eis in der Waffeltüte“ Thomas Glowatzki „Spiel nicht mit den Flüchtlingskindern“ Georg…  
MB_2020_07.pdf   MITTEILUNGSBLATT MARKT IRSEE HERAUSGEGEBEN VOM MARKT IRSEE Meinrad-Spieß-Platz 1 · 87660 Irsee · Tel. 0 83 41 / 22 14 · Fax 0 83 41 / 10 15 29 · info@irsee.de · www.irsee.de Öffnungszeiten: Dienstag…  
Buergerstammtisch_1_200211_Ergebnisse_A3.pdf   IRSEE 2040?! BÜRGERBETEILIGUNG >> GEMEINSAM WEITERDENKEN GEMEINSAM ZIELE ENTWICKELN FÜR EIN ZUKUNFTSWEISENDES INNENENTWICKLUNGSKONZEPT ! ERGEBNISSE.. „ORTSMITTE ?!“ „INNEN STATT AUSSEN !“ „NEUES…  
MB_2020_05__1_.pdf   MITTEILUNGSBLATT MARKT IRSEE HERAUSGEGEBEN VOM MARKT IRSEE Meinrad-Spieß-Platz 1 · 87660 Irsee · Tel. 0 83 41 / 22 14 · Fax 0 83 41 / 10 15 29 · info@irsee.de · www.irsee.de Öffnungszeiten: Dienstag…  
Suchergebnisse 301 bis 310 von 390
Die Suchabfrage hat 43 ms in Anspruch genommen.